0 applicants
🔒 BSN available
Londenstraat 118, Zoetermeer, 2711 DE
Te huur: ruime flatwoning aan de Londenstraat 118 – beschikbaar per 1 december 2025
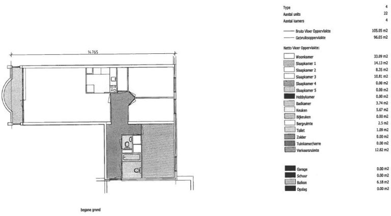
Aan de Londenstraat 118 komt per 1 december 2025 een ruime en comfortabele flatwoning beschikbaar, gelegen op de 2e verdieping van een verzorgd wooncomplex. De woning heeft een woonoppervlakte van 96 m² en beschikt over drie slaapkamers, ideaal voor een gezin, een stel dat extra ruimte wenst of bewoners die graag een aparte werkkamer of logeerkamer willen inrichten.
De ruime woonkamer is licht en uitnodigend en biedt toegang tot een balkon, waar u heerlijk kunt ontspannen en genieten van de buitenlucht. De keuken is praktisch ingedeeld en biedt voldoende ruimte om naar eigen wens in te richten. Daarnaast beschikt de woning over een nette badkamer en een separaat toilet, wat zorgt voor extra wooncomfort.
De woning heeft een energielabel B, wat betekent dat het huis goed geïsoleerd is en zorgt voor een prettige balans tussen comfort en energiezuinig wonen.
Financiële gegevens:
Huurprijs: € 1.250,00 per maand
Servicekosten: € 48,00 per maand
Eenmalige kosten naamplaatje: € 70,00 (2x)
De omgeving
De Londenstraat is een fijne woonlocatie met een prettige mix van rust en stedelijke voorzieningen. In de directe omgeving vindt u diverse winkels, supermarkten, scholen en sportfaciliteiten. Ook zijn er gezellige horecagelegenheden en parken in de buurt. Dankzij de gunstige ligging zijn zowel het openbaar vervoer als uitvalswegen eenvoudig te bereiken, waardoor u binnen korte tijd in het stadscentrum of andere delen van de stad bent.
Beschikbaarheid en bezichtiging
De woning is beschikbaar vanaf 1 december 2025. Bent u geïnteresseerd? Dien dan eenvoudig een bezichtigingsaanvraag in via onze website.
Let op: de informatie en afbeeldingen op onze website zijn uitsluitend bedoeld ter indicatie. Aan de inhoud kunnen geen rechten worden ontleend.
## Kenmerken
| Huurprijs | € 1.250,- /mnd | | Servicekosten | € 48,- /mnd | | Waarborg | € 1.250,-<br> <br>(Let op: dit is een indicatie, afwijkende eisen kunnen voorkomen.) | | Woonoppervlakte | 96 m2 | | Slaapkamers | 3 | | Energielabel | B | | WWS Punten | 191 | | Status | Te huur | | Beschikbaar vanaf | 1 december 2025 | | Complex | 4226 Londenstraat 1-206 e.a. Zoetermeer [(meer informatie over het complex)](https://ikwilhuren.nu/complex/4226-londenstraat-1-206-e-a-zoetermeer-d97cbf5dba8c17ffa5511e1f79f8a2b5/)
## Plattegrond

## Locatie
2 km
## Verhuurkantoor
MVGM Rotterdam
Coolsingel 120
3012AG Rotterdam
(+31 88 43 24 700)
Londenstraat 118, Zoetermeer, 2711 DE
The higher the score, the more trustworthy the listing appears to be. Always exercise caution regardless of score.
IkWilhuren.nu is MVGM Wonen’s official rental portal for the Netherlands, offering hundreds of apartments, houses, senior housing, and new-build properties nationwide. All listings are managed and let by MVGM (a professional property manager) on behalf of owners—no private landlord ads. Registration is free, but you need an account to respond/apply and you must meet MVGM’s income and screening requirements.